First National TV
Office Videos
Agent Videos
Subscribe to Alerts
  • Refine Search

Lot 8/10 Rienzo Drive, Flat Bush 2013, Auckland New Zealand

Loading the video ...

Lot 8/10 Rienzo Drive, Flat Bush 2013, Auckland New Zealand

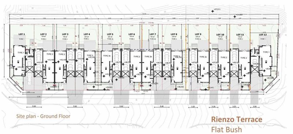
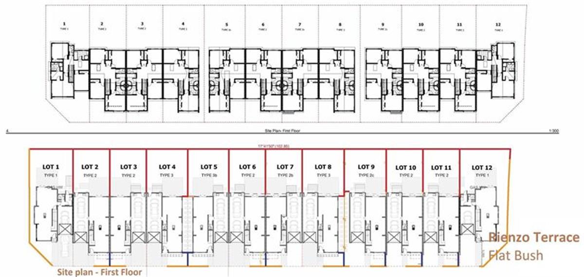
Modern living in Flat Bush * 12 quality homes to choose from * 3 or 4 bedrooms terrace available * 10 Year Master Build Guarantee * Freehold Title * Only 10% deposit on signing for NZ resident and 15% deposit non resident (conditions apply) * Estimated completion late 2018 All brand new stylish terrace homes with spatial design ensures all space are practically used, this 2 level solid built in high standard with quality workmanship and tasteful decor throughout with all comforts. Offers master en-suite, bright and airy bedrooms, lavish tiled bathrooms, open plan living & ultramodern kitchen with quality fitting and appliances. This fabulous brand new terraces are well situated in most desirable location, just a very short drive to Botany Town Centre, Botany Junction, Barry Curtis Park and local Schools. specifications 10 years Master Builder Guarantee Aluminium joinery - double glazed to all living areas Treated timber framing and brick cavity system Insulated ceiling and external walls Quality carpets Tiles to service areas Recessed light fittings Security alarm system Wall mounted heat pump Rinnai water heating Quality tapware throughout home Quality kitchen with engineered stone top Soft close drawers to kitchen Appliances - gas hob, electric oven, dishwasher, waste disposal, rangehood Water feed to fridge Custom built bathroom vanities with cupboards and/or drawers Heater and ducted ventilation fans to bathrooms Heated towel rail Shower fitted with clear safety glass door and easy-clean trap Fitted mirror to bathrooms Auto-opening garage door with remotes Supertub in laundry Exposed aggregate driveway Landscaped front and rear yards Fenced rear yard Clothesline and letter Please note that all images are artists impressions of the intended finished product PLEASE NOTE: Specified floor and land area sizes have been obtained from sources such as Propertysmarts or Auckland Council (LIM) documents. They have not been measured by the Salesperson or Rutherford Real Estate Limited. We recommend you seek your own independent legal advice if these sizes are material to your purchasing decision.






Flat Bush - Quality Is Important

  • 4 Bed
  • 2 Bath
  • 2 Car
Modern living in Flat Bush
* 12 quality homes to choose from
* 3 or 4 bedrooms terrace available
* 10 Year Master Build Guarantee
* Freehold Title
* Only 10% deposit on signing for NZ resident and 15% deposit non resident (conditions apply)
* Estimated completion late 2018
All brand new stylish terrace homes with spatial design ensures all space are practically used, this 2 level solid built in high standard with quality workmanship and tasteful decor throughout with all comforts. Offers master en-suite, bright and airy bedrooms, lavish tiled bathrooms, open plan living & ultramodern kitchen with quality fitting and appliances. This fabulous brand new terraces are well
situated in most desirable location, just a very short drive to Botany Town Centre, Botany Junction, Barry Curtis Park and local Schools.

specifications
10 years Master Builder Guarantee
Aluminium joinery - double glazed to all living areas
Treated timber framing and brick cavity system
Insulated ceiling and external walls
Quality carpets
Tiles to service areas
Recessed light fittings
Security alarm system
Wall mounted heat pump
Rinnai water heating
Quality tapware throughout home
Quality kitchen with engineered stone top
Soft close drawers to kitchen
Appliances - gas hob, electric oven, dishwasher, waste disposal, rangehood
Water feed to fridge
Custom built bathroom vanities with cupboards and/or drawers
Heater and ducted ventilation fans to bathrooms
Heated towel rail
Shower fitted with clear safety glass door and easy-clean trap
Fitted mirror to bathrooms
Auto-opening garage door with remotes
Supertub in laundry
Exposed aggregate driveway
Landscaped front and rear yards
Fenced rear yard
Clothesline and letter

Please note that all images are artists impressions of the intended finished product

PLEASE NOTE: Specified floor and land area sizes have been obtained from sources such as Propertysmarts or Auckland Council (LIM) documents. They have not been measured by the Salesperson or Rutherford Real Estate Limited. We recommend you seek your own independent legal advice if these sizes are material to your purchasing decision.

Property Type Townhouse
Property ID 520875
Street Address Lot 8/10 Rienzo Drive
Suburb FLAT BUSH
Postcode 2013
Price $1,010,000

Extra features
  • Range Hood, Clothes Line,

Inspection By Appointment

Agent Photo Not Available




              

Follow on Facebook



Submit Feedback